검색

[후나바시시] 게이세이후나바시 806

    8.4万円
    관리비 12,000円
최근 등록 매물 (모집 가능성 높음)
업데이트일: 2026/04/14
※ 선착순 접수 방식으로 입주 희망일 기준 실시간 매물 확인이 필요합니다.
NEW입주가능시기: 상담
초기비용 합계: 495,700 円

※ 본 초기비용은 관리회사의 예상 초기비용으로, 중개수수료는 별도입니다.
※ 보증회사 이용료 플랜은 관리회사 측 지정·선택에 따르며, 입주 시작일·비자 조건 등에 따라 실제 청구 금액은 변동될 수 있습니다.

기본정보

게이세이후나바시 806호는 京成本線·게이세이 본선·게이세이후나바시역 도보 1분 거리에 위치한 매물로 (RC)철근콘크리트 구조입니다. 시키킹은 1개월치이며, 레이킹은 2개월치입니다. ※ 예상 초기비용은 [가격/상세] 탭에서 확인 가능하며, 그 외 상세 조건 및 계약 가능 여부는 개별 문의를 통해 자세히 확인 안내드립니다.

주소/노선

Open on Google Maps
  • 주소: 千葉県船橋市本町1丁目11-29
  • 도시: 치바
  • 행정구역: 후나바시시
  • 노선: 京成本線·게이세이 본선

가격/상세

  • 매물 ID sf_20260414_0006
  • 금액(월) 84,000円
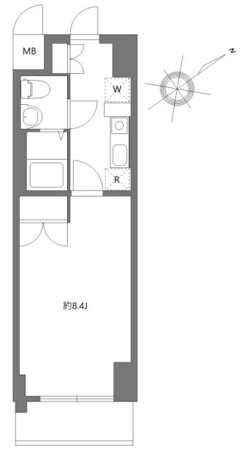
  • 크기(㎡) 25.66
  • 매물구조 원룸 (1K)
  • 계약형태 1~2년 월세 임대계약
  • 시키킹 1개월치
  • 레이킹 2개월치
  • 관리비(월)¥ 12,000
  • 열쇠교환비 38,500円
  • 화재보험 (2년)20,000円
  • 집세보증이용료 70%
  • 기타비용1 프레미아 데스크 22000円
  • 주요채광 남동
  • 건물형태 (RC)철근콘크리트
  • 입주가능 시기 상담

원포인트 정보

  • (RC)철근콘크리트
  • 건물형태
  • 남동
  • 주요채광
  • 25.66
  • 면적 크기
  • 원룸 (1K)
  • 매물구조

문의하기

japanhomes
  • japanhomes

이 매물 계약 상담 신청

비슷한 매물

매물 선택 비교

비교하기
京成本線·게이세이 본선